BRICK BY BRICK
[ Doctor’s House, Maji Moto village, Arusha district, Tanzania, 2018 ]
In collaborazione con Arch. Claudia Cavallo
L’iniziativa nasce dalla collaborazione con C-re-a.i.d. (Change – REsearch – Architecture – Innovation – Design) O.N.G. belga attiva in Tanzania che dal 2012 si dedicata ad esplorare le tecniche costruttive e i materiali sostenibili per promuovere un miglioramento socio-economico ed ambientale a lungo termine in tutto il Paese.
Maji Moto è un villaggio spontaneo situato nel distretto di Arusha, nel nord della Tanzania, alle pendici del Kilimanjaro. Conta una popolazione di 1200 adulti e 800 bambini. In seguito alla diffusa privatizzazione dei terreni, la popolazione dei Maasai fu costretta ad abbandonare il nomadismo ed attorno al 1975 una parte di essi decise di fondare il villaggio.
La “Doctor’s House”, necessaria per l’operatività del centro medico, garantirà alla popolazione le strutture adeguate per un controllo medico di base e per il soccorso primario. La costruzione della casa del dottore avrà anche una funzione pratico-sperimentale in termini di qualità e vivibilità degli spazi e dell’uso di tecniche e materiali sostenibili.
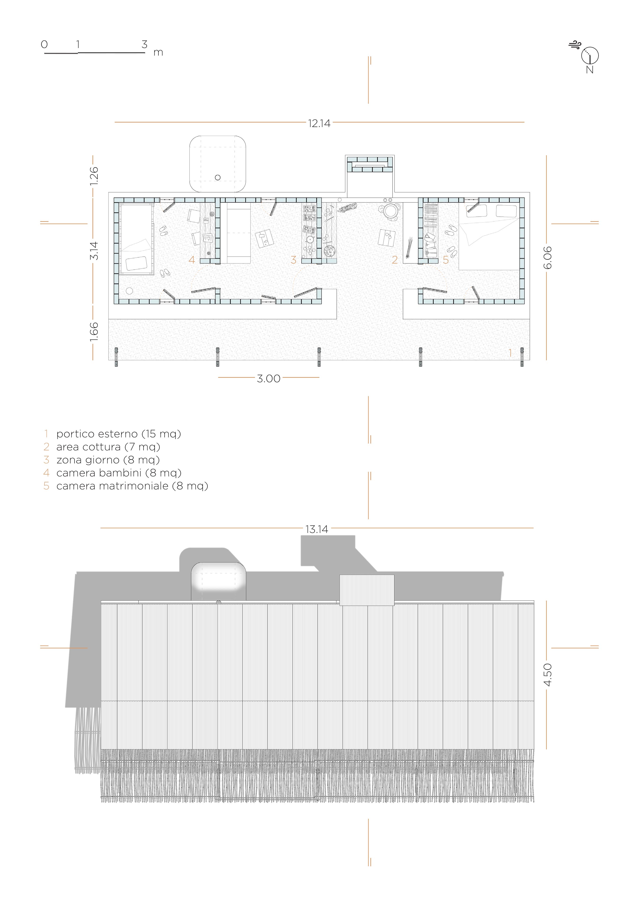
La collocazione planimetrica tiene in considerazione il desiderio di creare uno spazio pubblico comunitario assieme al Women’s Center, alle altre due Doctor’s House e al Dispensary (progetti promossi da C-re-a.i.d. negli ultimi anni); e la necessità di assecondare i vincoli spaziali e climatici del luogo, con i suoi venti dominanti da sud-est e le sue specifiche incidenze solari dell’emisfero australe.
La piccola abitazione apre il suo prospetto sul lato più illuminato (nord), anticipato da un portico esterno che ombreggia la facciata creando un microclima fresco e ventilato.
Il prospetto tergale, esposto a sud-est, è compatto, in risposta ai venti dominanti che talvolta provocano delle tempeste di sabbia e polvere.
La superficie di 30 mq viene ripartita in quattro moduli 3×3 m corrispondenti ai tre ambienti interni e ad uno esterno che ospita la cucina. Per accogliere la tradizione culinaria locale, e al contempo risolvere la condizione di insanità legata alla combustione in un ambiente chiuso – largamente diffusa nel villaggio – il progetto prevede uno spazio aperto ma coperto perimetrato da sedute e dominato da un grande camino, che convoglia i fumi.
Il portico esterno è pensato per creare un luogo di relazione tra la famiglia del dottore e gli abitanti del villaggio, configurandosi come luogo di scambio e mediazione, e al contempo come filtro fra spazio pubblico e privato.
Gli ambienti interni della casa sono semplici e funzionali: una sala giorno e due camere da letto di pari dimensioni. La disposizione spaziale non prevede ambienti serventi, con l’area cucina e la zona giorno che svolgono la funzione distributiva.
–> Il workshop di autocostruzione che ha portato alla realizzazione.

















