T C A
Proposta per il concorso internazionale “Nuovo Teatro Comunale di Albignasego [ PA]”, 2018

Il territorio che circonda l’area di progetto è una composizione ritmica di terre fertilissime, fonti sorgive, acque curative e canali a perdita d’occhio che scandiscono tessiture di matrice antichissima in cui l’acqua è protagonista. Il disegno della centuriazione romana è tuttora leggibile nelle partizioni agrarie e reiterato nelle composizioni urbane.
Entra nel progetto del parco come una continuazione della matrice territoriale e nel progetto del teatro come gesto primario di fondazione: due assi perpendicolari definiscono i tessuti connettivi e si allargano in scorci prospettici che mettono in relazione il disegno complementare di interno ed esterno. Il parco si costruisce per linee parallele e distribuzioni trasversali, come un orditura agricola.

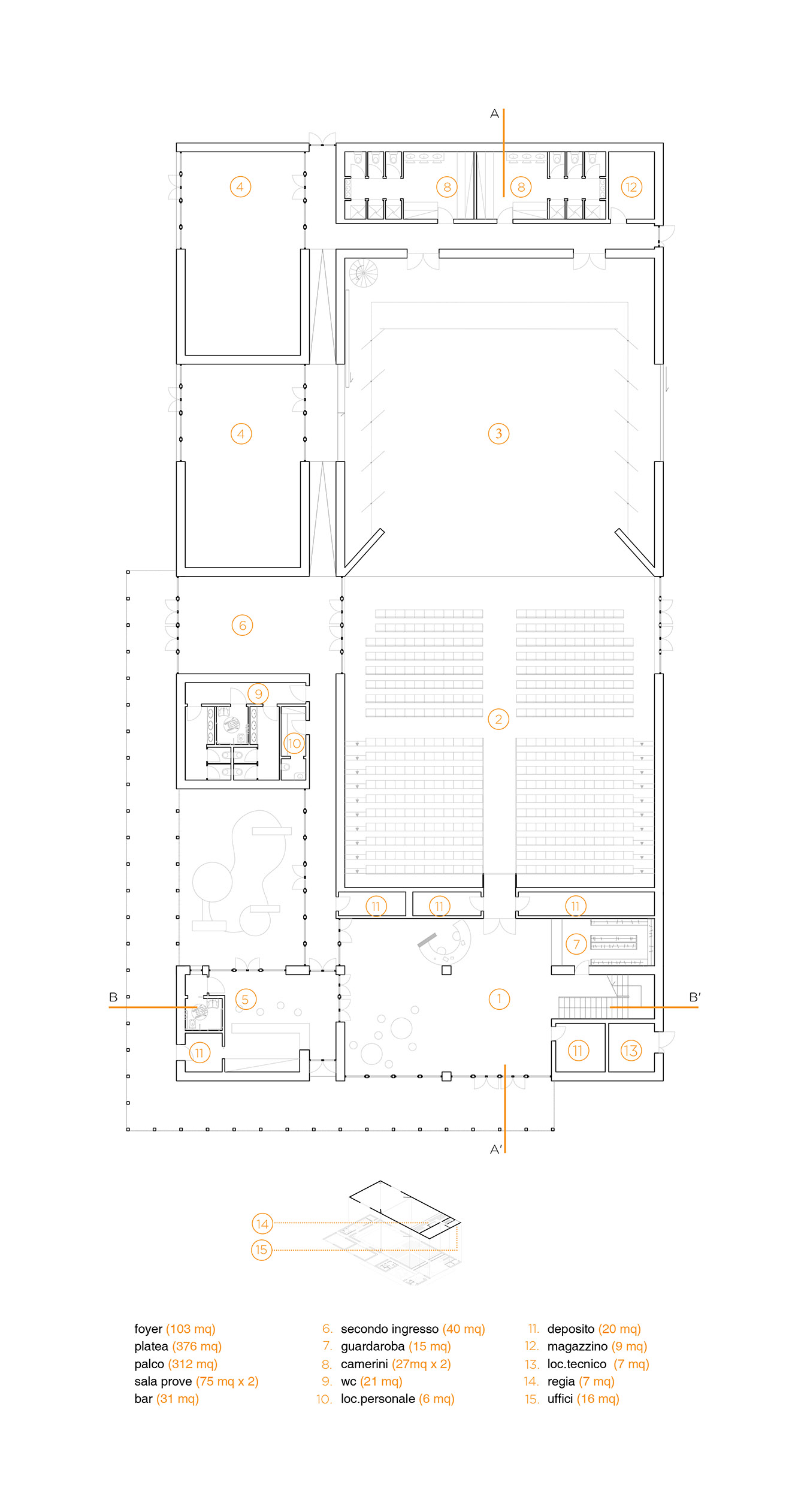
L’edificio si inserisce nel solco della tradizione costruttiva locale: architetture massive, essenziali, austere. Grazie ad un connettivo strategicamente articolato attraverso due ingressi indipendenti, il progetto, oltre a garantire un uso contemporaneo di tutti gli spazi, garantisce il suo utilizzo per parti offrendo configurazioni distributive distinte.


Il parco, cuore pubblico del progetto, racchiude all’interno di una circonferenza gli spazi complementari al teatro estendendo all’esterno di esso l’attività culturale. Un sistema di orti didattici dialoga con il contesto agricolo.

